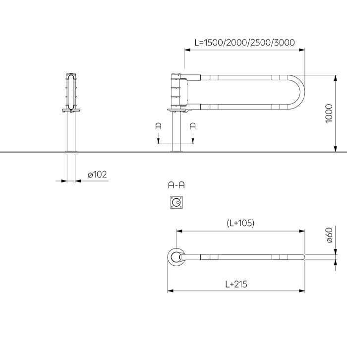
BAX bilspärr i 1,5 meters längd är en kompakt och flexibel lösning som passar perfekt för mindre passager i bostadsområden och andra miljöer med behov av säker och kontrollerad åtkomst. Produkten levereras inklusive brandkårslås och är förberedd för cylinderlås.
Med en 90° öppningsvinkel åt båda håll och möjligheten att fixeras i öppet läge ger denna spärr både bekvämlighet och säkerhet. De tre tillgängliga låsalternativen och den inbyggda nyckelhållarfunktionen garanterar att nyckeln endast kan tas bort när spärren är låst, vilket bidrar till extra trygghet.
BAX bilspärr i 1,5 meters längd är idealisk för småskaliga installationer där både säkerhet och smidig åtkomst är viktigt.
Som tillval finns ingjutningsfundament och ett betongfundament för montering.
Denna produkt är svensktillverkad
Tack för att du kontaktade oss. Vi hör av oss inom en arbetsdag.