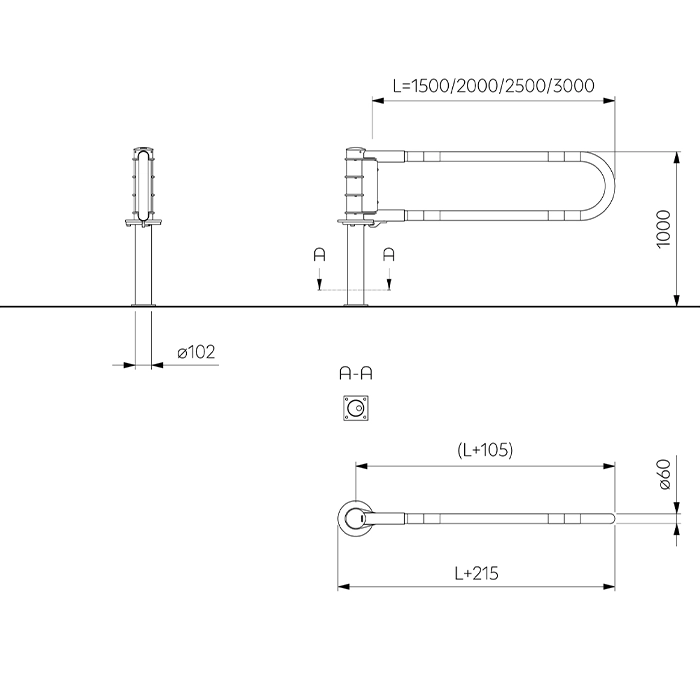
BAX bilspärr i 2 meters längd är en mångsidig lösning för medelstora passager i bostadsområden, parkeringsplatser och andra miljöer där reglerad tillgång är nödvändig. Produkten levereras inklusive brandkårslås och är förberedd för cylinderlås.
Spärrens 90° öppningsvinkel åt båda håll och möjligheten att fixeras i öppet läge gör den användarvänlig och praktisk. De tre låsalternativen och den robusta konstruktionen säkerställer långvarig funktionalitet, medan den inbyggda nyckelhållarfunktionen tillför ytterligare säkerhet genom att nyckeln endast kan avlägsnas när spärren är korrekt låst.
För medelstora installationer där säkerhet och flexibilitet är prioriterat är BAX bilspärr det perfekta valet.
Som tillval finns ingjutningsfundament och ett betongfundament för montering.
Denna produkt är svensktillverkad
Tack för att du kontaktade oss. Vi hör av oss inom en arbetsdag.